saai | Archive for Architecture and Engineering

Digital Collection Egon Eiermann

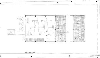
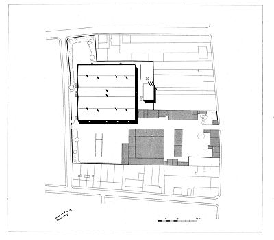
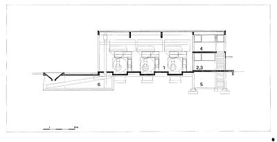
Production hall and boiler plant Hubert Zettelmeyer engineering works
1953-1957

test

Production hall and boiler plant Hubert Zettelmeyer engineering works

Project-specific information

Project Production hall and boiler plant Hubert Zettelmeyer engineering works
Persons involved
  • Egon Eiermann und Robert Hilgers, Architekten
  • insofar as archive documents prove it, partially incomplete

Project period 1953-1957
Typology Industriekomplex, industrial complexes; Fabrik, factories (structures)

Site-specific information

Country Deutschland
City Konz